检验科PCR实验室建设的功能分区附设备仪器清单
华锐净化 2020-04-28 20:02:48 阅读
何为PCR?临床基因扩增实验又称PCR实验,是专门用来检验艾滋病、乙型肝炎、禽疫病等病毒感染性疾病的一种检测手段。它可以通过将病毒体内所含的基因进行扩增的方法,测出一些病毒含量不高的感染者体内是否含有特定的病毒。
华锐净化公司作为专业的PCR实验室建设公司,与西南地区各大医院检验科、疾控中心PCR实验室有着良好的业务往来,丰富的PCR实验室建设经验,为大家整理了PCR实验室的平面布局图案例及需要的实验仪器清单,供大家参考!

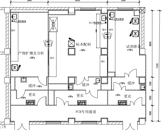
1、某医院检验科PCR实验室平面布局图

2、疾病预防控制中心PCR实验室平面布局案例

3、PCR实验室试剂准备区设备仪器清单

4、PCR实验室样品制备区所需仪器设备清单

5、PCR实验室扩增区及PCR产物分析区所需设备仪器清单
以上关于医院疾控PCR实验室平面布局图及所需设备清单相关内容就为大家介绍到这里,有不详之处敬请谅解!也可致电华锐净化公司工程师18980800355进行技术交流探讨!我们官网:www.schrjh.com

成都实验室装修公司:洁净实验室的装饰要求
浅谈净化工程中洁净室等级百级、千级、万级、十万级的划分标